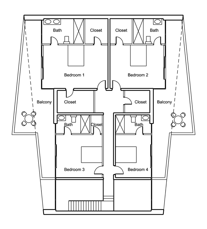
Elegant four bed / bath contemporary home, suitable for a lot width above 25m wide. Features a double attached garage, open plan living space, balcony access from all bedroom suites. All glazing is recessed to avoid excessive solar insolation in hot sunny climates. The preferred shell construction is in reinforced concrete.
Visit our Chinese (中文) website