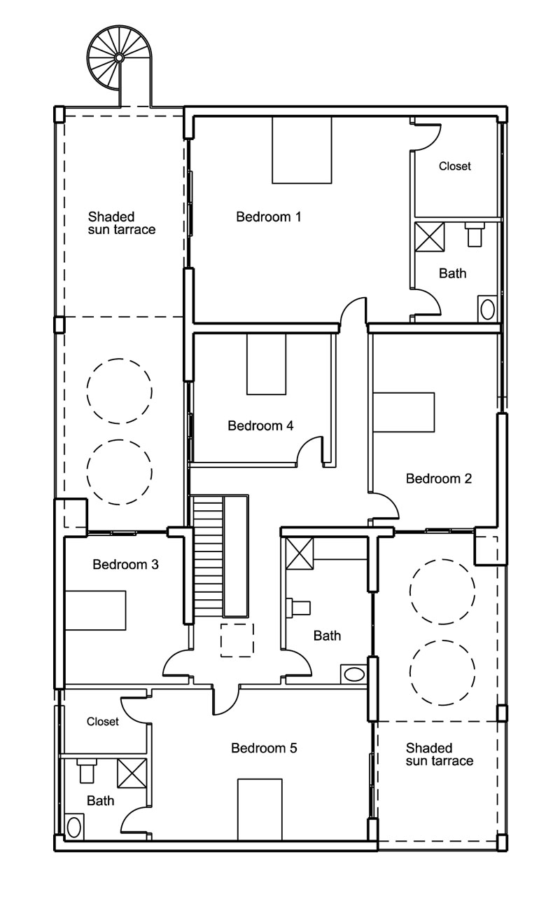
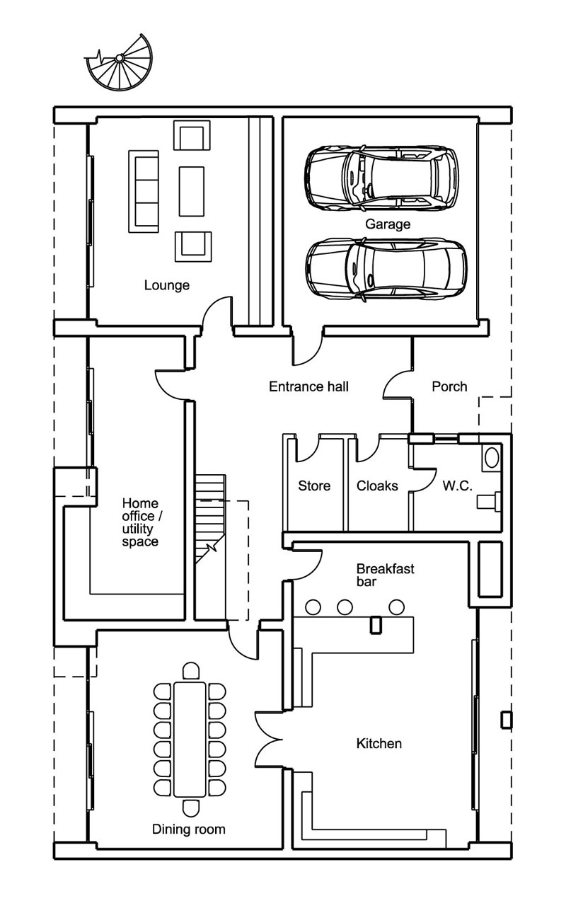
Compact 5 bed / 3 bathroom property with cool modern look. Features a double attached garage, home office, seperate kitchen, dining room and lounge. All bedrooms give access to either front or rear shaded sun terraces, with the rear terrace connecting to the garden / pool via an external metal spiral staircase. The floor-to-ceiling glazing is recessed or shaded, making this home suitable for hot sunny climates. A highly constructable design using conventional domestic construction methods, makes this property economical to build, yet with no compromise on style!
Visit our Chinese (中文) website