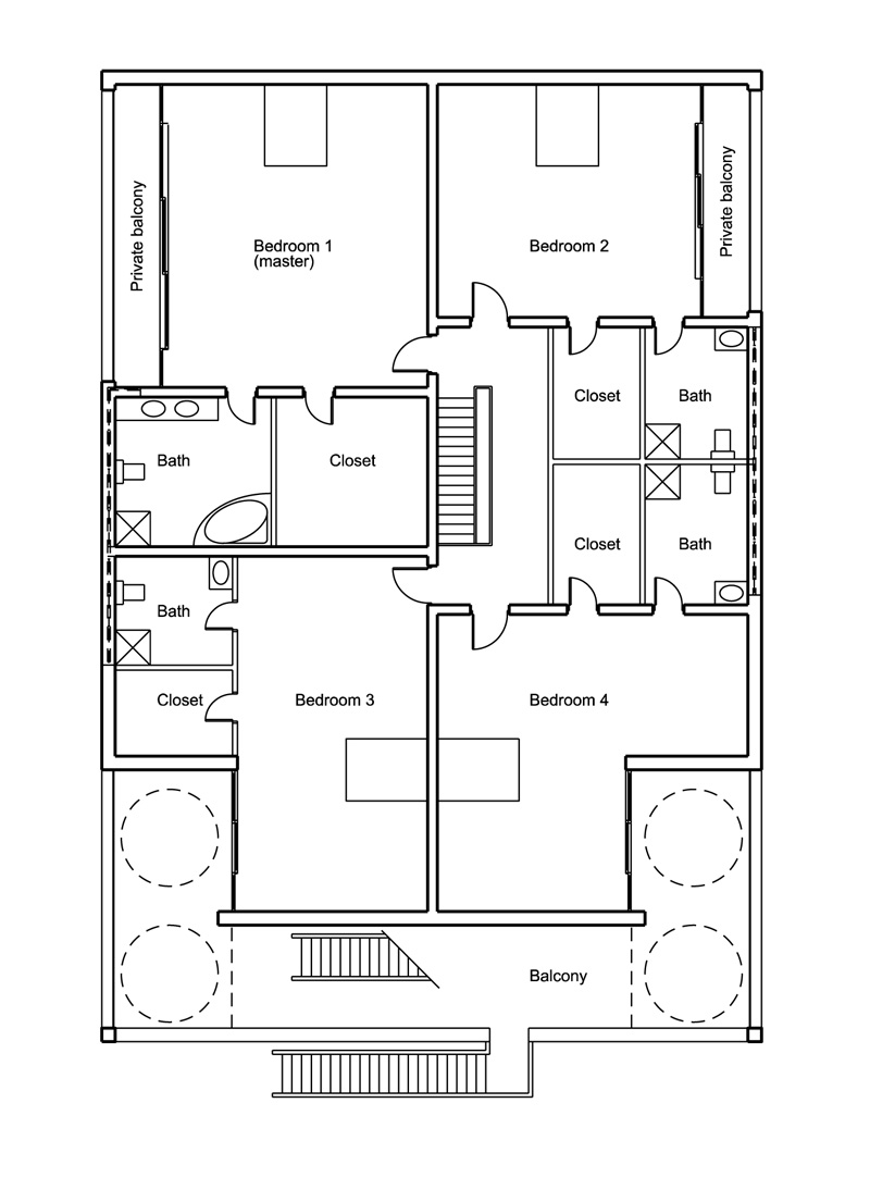
Luxury four bed / bath home in early modernist style. Features a double attached garage, dramatic cantilever façades, with private balconies and a fully accessible roof terrace with external staircases. All floor to ceiling glazing is recessed or shaded, making this design ideally suited for hot sunny climates. Shell construction in reinforced concrete.
Visit our Chinese (中文) website